您好,欢迎来到上橙装饰官网!

上橙建筑装饰工程(北京)有限公司
  • 首页
  • 关于我们
  • 服务与优势
  • 项目案例
  • 新闻资讯
  • 联系我们
  • 联系我们
    上橙建筑装饰 > 成功案例 > 商场项目 >

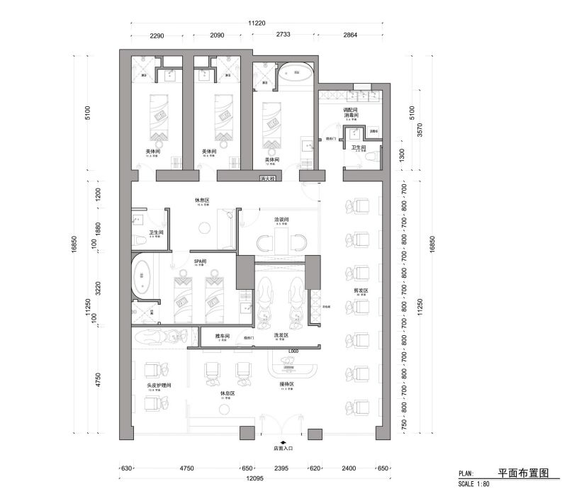
梵茜儿美业












  • 上一篇:天坛金鱼池2号院
  • 下一篇:至圣文化展室

相关推荐

爱自己美容院

融科 八适养生店

喜德仁王府井店

至圣文化展室

上橙建筑装饰工程(北京)有限公司
  • 首页
  • 关于我们
  • 服务范围
  • 成功案例
  • 新闻资讯
  • 联系我们

加盟上橙
人才加盟
设计师加盟
配套服务商加盟
材料供应商加盟
联系上橙
上橙建筑装饰工程(北京)有限公司
地址:北京市大兴区兴华大街波普中心3号楼七层
邮箱:shangchengchina@126.com
咨询上橙
010-56026088
13522381219
微信咨询
微信二维码
添加微信
微信二维码
友情链接
百度 360
  • 上橙建筑装饰工程(北京)有限公司 版权所有
  • 京ICP备19053387号-1